Centro Psammoterapico, Lignano Sabbiadoro

Localizzazione
Lignano Sabbiadoro (UD) Riviera
Oggetto
stabilimento termale
Denominazione
Centro Psammoterapico
Autore
Valle Gino (1923/ 2003)
Uso storico
stabilimento termale
Uso attuale
stabilimento termale
Codice scheda
A_9480

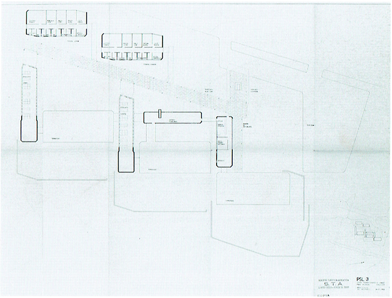
Nel marzo del 1962 venne presentato il progetto dell’architetto Gino Valle per il Centro Psammoterapico, successivo a quello di Daniele Calabi del 1959, mai realizzato. Il nuovo complesso sarebbe sorto sulla medesima area, con il supporto progettuale dello stesso Calabi. Ad aprile Valle elaborò e presentò, autonomamente, un’ulteriore proposta progettuale, nella quale furono apportate alcune modifiche di lieve entità. La caratteristica principale del progetto di Valle sta nell'organizzazione degli edifici che compongono l'intero complesso: essi sono distinti in base alle loro funzioni, tra caledario e tepidario, a seconda della separazione tra reparto maschile e femminile. Gli edifici sono costituiti da uno o due piani fuori terra e il loro concatenarsi genera spazi chiusi e semichiusi, strettamente connessi al sistema delle dune circostanti in cui sono inseriti. L'intera composizione è strutturata seconda una maglia geometrica di 120x120 cm, riconoscibile anche nei prospetti. Si accede da una pensilina attraverso un lungo percorso durante il quale si incrociano i padiglioni maschile e femminile, disposti su due piani, e si affianca un edificio più basso utilizzato per le terapie inalatorie. Al piano superiore di ogni singolo padiglione si trova il calidario; da questo, attraverso un passaggio in quota, si accede al tepidario e da lì al campo esterno delle sabbiature. Il complesso si presenta oggi parzialmente alterato rispetto all’impianto originario, a causa dell’aggiunta e della rimozione di alcuni volumi. Prospiciente la spiaggia, sorge accanto al Kursaal Centro Congressi.

Nel 1959 Daniele Calabi presentò un progetto per il Centro Psammoterapico mai realizzato. Successivamente, nel marzo del 1962 venne presentato il progetto dell’architetto Gino Valle con il supporto progettuale dello stesso Calabi. Ad aprile, invece, Valle elaborò e presentò, autonomamente, un’ulteriore proposta progettuale, nella quale furono apportate alcune modifiche di lieve entità. Dalle immagini storiche disponibili sulla piattaforma Google Earth, si può riscontare come attualmente l'intero complesso risulta essere modificato rispetto all’impianto originario, probabilemente in seguito a ristrutturazione, ma soprattutto a causa dell’aggiunta e della rimozione di alcuni volumi.

Maglia geometrica di pilastri in cemento armato.

BIBLIOGRAFIA

Dentro Lignano, Dentro Lignano. Un percorso fra le architetture per le vacanze / Inside Lignano. Holiday Homes and Seaside Architecture, Udine 2019

Luppi F./ Nicoloso P., Lignano - guida all'architettura, Pordenone 2002

Dove si trova