Sporting Club, Lignano Sabbiadoro

Localizzazione
Lignano Sabbiadoro (UD) Punta Faro
Oggetto
impianto sportivo
Denominazione
Sporting Club
Autore
Studio Nizzoli (1948/)
Uso storico
impianto sportivo
Uso attuale
impianto sportivo
Codice scheda
A_3844

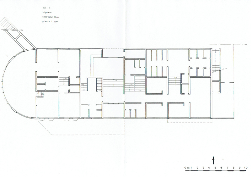
L'intervento edilizio dello Sporting club si colloca all'interno del sistema portuale della darsena di Punta Faro, situata in un'area all'estremità nord della penisola di Lignano, in cui si trovano edifici portuali e complessi residenziali. Accoglie vari servizi e attrezzature sportive, un bar, un ristorante con terrazza. Sorge su un piccolo rialzo isolato nel verde, in cui la piscina all'aperto è circondata da un colonnato che riproduce con esattezza quello del Foro romano di Aquileia. Affaccia per due lati verso la darsena, separato da uno stretto percorso pedonale, per gli altri due lati verso l'interno, nell'area verde. Il fabbricato, di tre piani di altezza, ha una pianta rettangolare e una delle testate termina con un caratteristico belvedere semicircolare riparato da una struttura in ferro a forma di cupola. La copertura è piana in cemento armato. L'organizzazione distributiva è data dalla sequenza dei setti disposti parallelamente ad interasse regolare: setti e muratura in cemento armato costituiscono la struttura portante. Le scale principali di accesso al primo piano e alla terrazza del belvedere sono poste all'esterno, di cui una disposta diagonalmente al corpo principale. Una scala a due rampe, posta internamente al centro dell'edificio, ed altre scale secondarie assicurano il collegamento tra i livelli. La diversità delle aperture (a nastro, circolari, rettangolari) corrisponde alla varietà degli spazi interni adibiti a funzioni sportive e ricreative. Le facciate, inizialmente rivestite con doghe di legno disposte diagonalmente, sono intonacate di color rosa pallido.

L'edificio fa parte di quel complesso architettonico che è il Centro Turistico di Lignano, considerato una delle più raffinate esperienze di architettura dell'inganno, dove tutto è volutamente simulato (come le colonne rifatte in cemento bianco in bella copia a imitazione di quelle della vicina Aquileia) e ricco di allusioni simboliche. Fin dagli anni '50 lo Studio Nizzoli ha portato avanti il discorso su forma e colore considerandole come parti integranti dell'architettura (si pensi alla cupola "virtuale" del ristorante in rete metallica). Anche qui, come per tutto il complesso turistico, è insolito l'uso originario dei materiali e del colore: l'elemento unificante dell'intervento era il legno scuro con il quale era stato rivestito l'intero l'edificio; i telai dei serramenti erano di colore verde chiaro come anche alcune pareti esterne. Oggi, purtroppo, questa differenza materica e cromatica è venuta a perdersi, probabilmente in seguito ad una manutenzione delle facciate, che risultano essere, allo stato attuale, intonacate con i colori neutri del rosa pallido; su esse insistono le aperture, mantenute nella loro forma originaria, il cui telaio ora risulta essere di colore blu. Questa soluzione "moderna" ha in qualche modo appiattito l'impatto visivo ed architettonico dell'intero complesso lasciandolo privo della valenza simbolica e allusiva tipica del modus operandi dello studio Nizzoli di quegli anni.

La struttura portante è data da setti e muratura in cemento armato.

BIBLIOGRAFIA

Gravagnuolo B., Gli Studi Nizzoli. Architettura e design 1948-1983, Milano 1983

Dove si trova